ehemaliges Rechenzentrum in Top-Lage von Krefeld!
Eckdaten
Immobilie
Diese ansprechende Liegenschaft eignet sich optimal als Rechenzentrum oder als Call-Center. Aber auch eine einfach Büronutzung wäre denkbar. Das Objekt wurde im Jahre 1990 erbaut und im Jahre 2015 umfassend saniert. Es ist geprägt durch eine funktionale Büroausstattung, moderne Architektur sowie einer Vielzahl an Fensterfronten. Das Objekt befindet sich auf einem gesicherten Gelände mit einem Sicherheitsdienst. Gerne können wir das Gebäude nach Ihren Vorgaben umgestalten.
Lage
Nordrhein-Westfalen (NRW) ist mit mehr als 600.000 Beschäftigten in der Logistikbranche das wirtschaftliche und logistische Herz Deutschlands und bietet, in allen Bereichen der Logistik, angepasste Lösungen. Viele Neuerungen aus der Logistikforschung und -entwicklung finden ihren Ursprung in NRW. Das Gewerbegebiet „Am Südpark“ liegt im Krefelder Süden unmittelbar an der A 44. Gemeinsam mit den umliegenden Gewerbe- und Industriegebieten bildet er - neben dem Rheinhafen Krefeld - den größten zusammenhängenden Wirtschaftsstandort. Im Krefelder Süden gibt es nach wie vor einen industriellen Kern, im Umfeld haben sich sowohl große Logistikunternehmen, produzierende Betriebe, internationale Dienstleister und Handwerker entwickelt.
Ausstattung
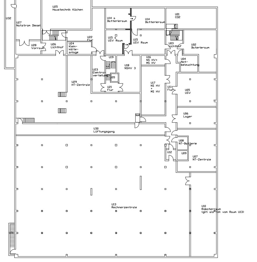
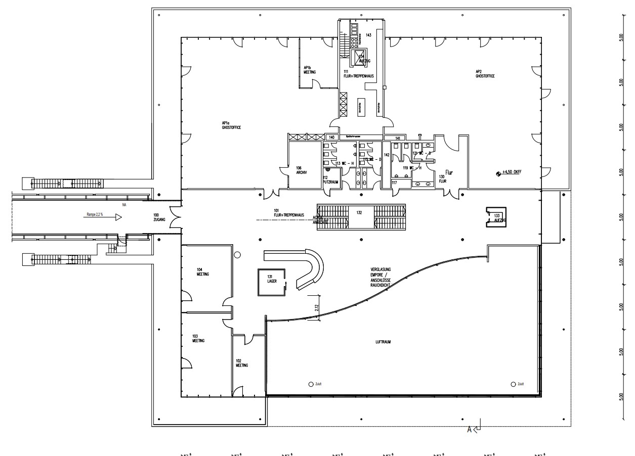
Flächenaufteilung: UG ca. 2.441,87 m² EG ca. 1.852,62 m² 1. OG ca. 1.334,94 m² Lageinformationen Auto A 57 ca. 5 Min. (Nord-Süd-Verbindung) A 44 ca. 5 Min. (Ost-West-Verbindung) ÖPNV Bus- und Straßenbahnhaltestelle ist nur wenige Minuten entfernt Airport Flughafen Düsseldorf ca. 18 km Flughafen Köln/Bonn ca. 78 km
Sonstiges
Energieausweis: Der Energieausweis ist beantragt und wird bei der Besichtigung vorgelegt. Mietkonditionen: Die genauen Konditionen und m²-Angaben ergeben sich aus der Vertragslaufzeit und den ggf. noch zu tätigenden Anpassungen und Umbaumaßnahmen. Alle Mieten verstehen sich zzgl. Nebenkosten und MwSt. in gesetzlicher Höhe von derzeit 19%. Gerne würden wir Ihnen die entsprechenden Möglichkeiten im Rahmen eines persönlichen Gespräches erläutern. Exposéangaben: Wir bitten um Beachtung, dass wir die Angaben in diesem Exposé vom Vermieter/Verkäufer erhalten haben und hierfür keine Haftung übernehmen können. Bei den Flächengrößen handelt es sich um ca-Angaben.


